OPIS SISTEMA
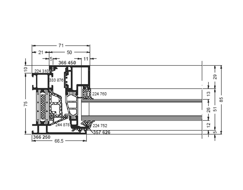
Sistem AWS 75 BS.HI koristi se za izradu prozora i fiksnih stijena. To je sistem profila sa prekinutim toplinskim mostom, osnovne ugradbene dubine 75 mm, minimalne vidljive širine dovratnika 66.5 mm.
Ovaj sistem karakterizira tzv. blok-krilo, tj. krilo je zahvaljujući svom obliku u potpunosti s vanjske strane integrirano u štok. Time je vidljiva širina profila prozora svedena samo na širinu štoka, bez širine krila kao u ostalim prozorskim sistemima. Prekid toplinskog mosta postiže se pomoću politermidnih (PT) stega koje omogućuju
površinsku obradu prije ugradnje u profil, ili poliamidnih (PA) koje omogućuju površinsku obradu nakon ugradnje u profil (1).
Sistem je kompatibilan i omogućuje ugradnju u fasadne sisteme Schüco FW50+ i FW60+.Također je moguća ugradnja u sisteme za odimljavanje i odvod topline (RWA sistemi). Način i smjer otvaranja RWA prozora je prilagođen projektu, a predviđen je elektromotorni pogon (linearni i/ili lančani), povezan sa sustavom vatrodojave.
U kombinaciji s trostrukim staklom (Ug=0.7 W/m2K) i odgovarajućim distancerom stakla (Ψ), sistem može postići ukupni koeficijent prolaza topline prozora Uw= 1.1 W/m2K.
Brtvljenje između krila i štoka prozora je izvedeno pomoću dviju EPDM brtvi- srednje brtve i brtve krila. Staklo je u krilo učvršćeno pomoću vanjske letvice, te zabrtvljeno EPDM brtvama s obje strane. Vanjska brtva je u obliku vulkaniziranog okvira i naručuje se na mjeru. Staklo u fiksnom polju učvršćeno je u okvir pomoću letvice s držačem s unutarnje strane. U vertikalnom presjeku težina stakla se
prenosi na profil preko PVC držača koji ujedno ima funkciju izolatora. Povećanje toplinske izolativnosti profila (Uf) postignuto je korištenjem trokomorne srednje brtve, i šupljih stega štoka i krila.
Okov je sistemski, može biti skriven tipa Avantec.
Karakteristike sistema:
- kvaliteta materijala: AlMgSi 0,5 F22 EN AW – 6060
- masa OZ krila do 160 kg, PASK krilo (otklopno-klizno) 130-150 kg
- moguća debljina stakla 8-52 mm
- debljina stijenke profila 2,2 mm
- moguće vrste otvaranja: zaokretno, otklopno-zaokretno (jednokrilno, dvokrilno), zaokretno-otklopno, otklopno oko donje ili gornje osi, otklopnoklizno (PASK), otklopno oko središnje vertikalne ili horizontalne osi
- mogućnost motornog pogona i automatskog upravljanja Tiptronic, skriveni okov AVANTEC
- topl. izolativnost, EN ISO 10071-2: Uf=1.5-1.9 W/m2 K
- materijal za brtvljenje (EPDM) DIN 7863
- površinska obrada DIN 17611
- kontrola kvalitete DIN EN ISO 9001
Karakteristike sistema prema HRN EN 14351:
- zrakopropusnost, HRN EN 12207: klasa 4
- vodonepropusnost, HRN EN 12208: klasa E 750
- zaštita od buke, HRN EN 4109: do 49 dB (ovisno o staklu)
- protuprovalnost, HRN ENV 1627: WK3
- otpornost na udar vjetra, HRN EN 12210: klasa C5/B5

